Z41H,Z45H德標法蘭閘閥
Z41H/Z45H德標法蘭閘閥適用于PN16-PN64,工作溫度-29~425℃(碳鋼)及-40~600℃(不銹鋼)的名種管路上,用于截斷或接通管路中的介質。 通過選用不同的材質,可適用于水、蒸汽、油品、硝酸、醋酸、強氧化性介質及尿素等多種介質。 驅動方式 手動、傘齒輪傳動及電動。
|
產品名稱: |
德標法蘭閘閥 |
產品型號: |
Z41H、Z45H |
|
公稱通徑: |
DN15~DN800 |
結構形式: |
閘板式 |
|
公稱壓力: |
PN16-PN64 |
連接方式: |
法蘭 |
|
適用溫度: |
-20ºC~+150ºC~425ºC~600ºC |
驅動方式: |
手動、傘齒輪、電動、氣動、液動 |
|
閥體材質: |
WCB、鑄鋼、碳鋼、鍛鋼、不銹鋼 |
制造標準: |
國標GB、德國DIN、美國API、ANSI |
|
適用介質: |
水、油、蒸汽 |
生產廠家: |
上海凱利科閥門有限公司 |
產品說明
Z41H/Z45H德標法蘭閘閥適用于PN16-PN64,工作溫度-29~425℃(碳鋼)及-40~600℃(不銹鋼)的名種管路上,用于截斷或接通管路中的介質。 通過選用不同的材質,可適用于水、蒸汽、油品、硝酸、醋酸、強氧化性介質及尿素等多種介質。 驅動方式 手動、傘齒輪傳動及電動。
結構特點
1、德標法蘭閘閥結構緊湊、設計合理、閥門剛性好、通道流暢,流阻系數小
2、密封面采用不銹鋼和硬質合金,適用壽命長。
3、采用柔性石墨填料、密封可靠、操作輕便靈活。
4、驅動方式有:電動、氣動、齒輪轉動、結構形式:彈型楔式單閘板、剛性楔式單閘板雙閘板式
5、水封閘閥廣泛用于化工、火力、發電廠等油品、水蒸氣管道上作接通或截斷管道中介質的啟閉裝置。
技術規范
|
結構形式 |
BB-BG-OS&Y |
|
驅動方式 |
手動 Hand-operated |
|
電動 Electric-actuated |
|
設計標準 |
DIN3352 |
|
結構長度 |
DIN3202 |
|
連接法蘭 |
DIN2543-2547 |
|
試驗和檢驗 |
DIN3230 |
產品性能規范
|
公稱壓力(MPa) |
殼體實驗壓力(MPa) |
密封試驗壓力(MPa) |
適用溫度(℃) |
使用介質 |
|
1.6 |
2.4 |
1.76 |
-110~600℃ |
水、蒸汽、油品等 |
|
2.5 |
3.75 |
2.75 |
|
4.0 |
6.0 |
4.4 |
|
6.4 |
9.6 |
7.04 |
主要零件材料及性能
|
殼體 |
GS-C25 |
1.4308 |
|
閥瓣 |
GS-C25 |
1.4308 |
1.4408 |
Monel |
|
閥桿 |
13Cr |
1.4308 |
1.4408 |
Monel |
F304 |
|
閥瓣密封面 |
13Cr |
13Cr |
STL |
1.4308 |
STL |
1.4408 |
STL |
Monel |
1.4308 |
1.4308 |
STL |
|
閥座密封面 |
13Cr |
STL |
STL |
1.4308 |
STL |
1.4408 |
STL |
Monel |
1.4308 |
STL |
STL |
|
殼體 |
1.4408 |
1.4306 |
1.4301 |
|
閥瓣 |
|
|
閥桿 |
1.4408 |
1.4306 |
1.4301 |
|
閥瓣密封面 |
1.4408 |
1.4408 |
STL |
1.4306 |
1.4306 |
STL |
1.4301 |
1.4301 |
STL |
|
閥座密封面 |
1.4408 |
STL |
STL |
1.4306 |
STL |
STL |
1.4301 |
STL |
STL |
|
|
|
|
|
|
|
|
|
|
|
|
|
|
|
|
|
|
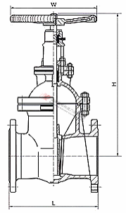
Z41H德標閘閥外形結構圖

Z41H-PN16德標閘閥主要連接尺寸
|
壓力等級 (MPa) |
PN1.6MPa/F5系列 |
|
口徑 |
nn |
50 |
65 |
80 |
100 |
125 |
150 |
200 |
250 |
300 |
350 |
400 |
450 |
500 |
600 |
|
L |
250 |
270 |
280 |
300 |
325 |
350 |
400 |
450 |
500 |
550 |
600 |
650 |
700 |
800 |
|
H |
417 |
452 |
530 |
607 |
720 |
790 |
885 |
1014 |
1190 |
1350 |
1460 |
1630 |
1800 |
2200 |
|
W |
200 |
280 |
280 |
300 |
350 |
350 |
400 |
450 |
500 |
600 |
600 |
650 |
700 |
800 |
|
重量 (Kg) |
16 |
25 |
30 |
55 |
75 |
98 |
150 |
245 |
353 |
490 |
750 |
985 |
1063 |
1390 |
|
|
|
|
|
|
|
|
|
|
|
|
|
|
|
|
|
Z41H-PN25德標閘閥主要連接尺寸
|
壓力等級 (MPa) |
PN2.5MPa/F5系列 |
|
口徑 |
nn |
50 |
65 |
80 |
100 |
125 |
150 |
200 |
250 |
300 |
350 |
400 |
450 |
500 |
600 |
|
L |
250 |
270 |
280 |
300 |
325 |
350 |
400 |
450 |
500 |
550 |
600 |
650 |
700 |
800 |
|
H |
417 |
452 |
530 |
607 |
720 |
790 |
885 |
1014 |
1190 |
1350 |
1460 |
1630 |
1800 |
2200 |
|
W |
200 |
280 |
280 |
300 |
350 |
350 |
400 |
450 |
500 |
600 |
600 |
650 |
700 |
800 |
|
重量 (Kg) |
16 |
31 |
43 |
58 |
82 |
103 |
180 |
265 |
385 |
547 |
835 |
1050 |
1130 |
1500 |
|
|
|
|
|
|
|
|
|
|
|
|
|
|
|
|
|
Z41H-PN40德標閘閥主要連接尺寸
|
壓力等級 (MPa) |
PN4.0MPa/F5系列 |
|
口徑 |
nn |
50 |
65 |
80 |
100 |
125 |
150 |
200 |
250 |
300 |
350 |
400 |
450 |
500 |
600 |
|
L |
250 |
290 |
310 |
350 |
400 |
450 |
550 |
650 |
750 |
850 |
950 |
1050 |
1150 |
1350 |
|
H |
404 |
456 |
604 |
607 |
720 |
780 |
875 |
1260 |
1480 |
1605 |
1788 |
1956 |
2168 |
2601 |
|
W |
200 |
280 |
300 |
350 |
350 |
400 |
450 |
500 |
500 |
600 |
650 |
700 |
700 |
800 |
|
重量 (Kg) |
18 |
32 |
47 |
60 |
95 |
130 |
220 |
290 |
490 |
760 |
900 |
1250 |
1450 |
1700 |
|
|
|
|
|
|
|
|
|
|
|
|
|
|
|
|
|
Z41H-PN64德標閘閥主要連接尺寸
|
壓力等級 (MPa) |
PN6.4MPa/F5系列 |
|
口徑 Size |
nn |
50 |
65 |
80 |
100 |
125 |
150 |
200 |
250 |
300 |
350 |
400 |
450 |
500 |
600 |
|
L |
250 |
290 |
310 |
350 |
400 |
450 |
550 |
650 |
750 |
850 |
950 |
1050 |
1150 |
1350 |
|
H |
404 |
456 |
604 |
607 |
720 |
780 |
875 |
1260 |
1480 |
1605 |
1788 |
1956 |
2168 |
2601 |
|
W |
200 |
280 |
300 |
350 |
350 |
400 |
450 |
500 |
500 |
600 |
650 |
700 |
700 |
800 |
|
重量 (Kg) |
20 |
35 |
52 |
66 |
103 |
140 |
230 |
300 |
510 |
780 |
940 |
1300 |
1600 |
1850 |
|
|
|
|
|
|
|
|
|
|
|
|
|
|
|
|
|
Z45H德標閘閥外形結構圖

Z45H-PN16德標閘閥主要連接尺寸
|
力等級 (MPa) |
PN1.6MPa |
|
口徑 Size |
nn |
50 |
65 |
80 |
100 |
125 |
150 |
200 |
250 |
300 |
350 |
400 |
|
L |
250 |
270 |
280 |
330 |
360 |
390 |
460 |
530 |
630 |
690 |
750 |
|
H |
305 |
354 |
402 |
437 |
496 |
541 |
699 |
815 |
914 |
1189 |
1350 |
|
W |
200 |
200 |
750 |
250 |
300 |
350 |
400 |
450 |
500 |
550 |
600 |
|
重量 (Kg) |
20 |
30 |
38 |
56 |
75 |
100 |
182 |
278 |
398 |
500 |
618 |
|
|
|
|
|
|
|
|
|
|
|
|
|
|
Z45H-PN25德標閘閥主要連接尺寸
|
壓力等級 (MPa) |
PN2.5MPa |
|
口徑 Size |
nn |
50 |
65 |
80 |
100 |
125 |
150 |
200 |
250 |
300 |
350 |
400 |
|
L |
250 |
270 |
280 |
330 |
360 |
390 |
460 |
530 |
630 |
690 |
750 |
|
H |
325 |
363 |
415 |
453 |
505 |
556 |
744 |
864 |
948 |
1269 |
1450 |
|
W |
200 |
200 |
250 |
300 |
350 |
400 |
450 |
500 |
550 |
600 |
600 |
|
重量 (Kg) |
20 |
30 |
39 |
58 |
80 |
101 |
190 |
290 |
405 |
510 |
650 |
|
|
|
|
|
|
|
|
|
|
|
|
|
|
Z45H-PN40德標閘閥主要連接尺寸
|
壓力等級 (MPa) |
PN4.0MPa |
|
口徑 Size |
nn |
50 |
65 |
80 |
100 |
125 |
150 |
200 |
250 |
300 |
350 |
400 |
|
L |
250 |
270 |
280 |
330 |
360 |
390 |
460 |
530 |
630 |
690 |
750 |
|
H |
325 |
370 |
430 |
480 |
532 |
589 |
783 |
888 |
965 |
1285 |
1512 |
|
W |
200 |
200 |
250 |
300 |
350 |
400 |
450 |
500 |
550 |
600 |
600 |
|
重量 (Kg) |
20 |
31 |
41.5 |
61 |
83 |
110 |
210 |
318.5 |
430 |
520 |
680 |
|
|
|
|
|
|
|
|
|
|
|
|
|
|
聲明:【Z41H,Z45H德標法蘭閘閥】規格型號、結構尺寸由上海凱利科閥門有限公司提供,如何選擇適用的Z41H,Z45H德標法蘭閘閥產品,使之在工藝控制中安全可靠、經濟適用,可致電我司銷售部門及技術部門,我們將在最短的時間內為您解答! |